Vous avez choisi la maison "MS-716"
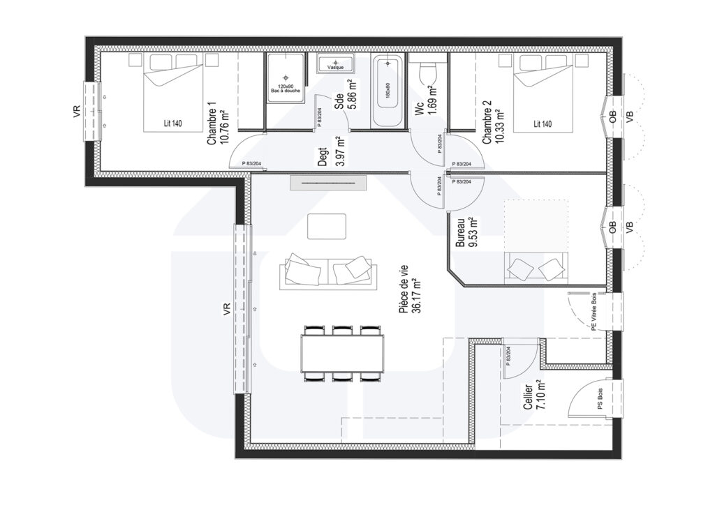
Cette maison de plain-pied présente un plan en L, optimisé pour une vie familiale. Elle dispose d’une grande pièce de vie ouverte regroupant salon, salle à manger et cuisine, baignée de lumière grâce à de larges ouvertures sur l’extérieur. L’espace nuit se divise en deux zones : une suite parentale avec salle d’eau et dressing dans l’aile gauche, et deux chambres supplémentaires accompagnées d’une salle de bain et d’un WC dans l’aile droite. Un cellier complète la partie cuisine, offrant du rangement. L’ensemble est compact, fonctionnel et confortable.




