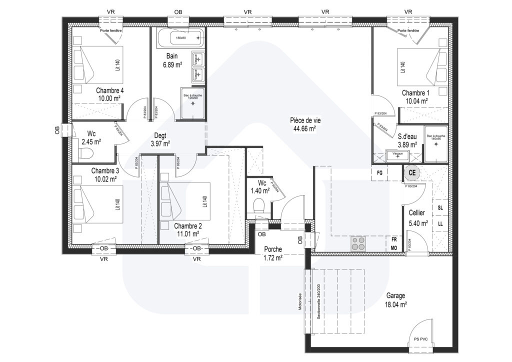
Vous avez choisi la maison "MS-721"
Cette maison de plain-pied offre une organisation spacieuse et bien pensée, idéale pour une vie de famille. Elle s’articule autour d’une grande pièce de vie lumineuse réunissant salon et salle à manger, avec une cuisine ouverte et un accès direct à un cellier. L’espace nuit se compose de quatre chambres, dont une suite avec salle d’eau privative, complétées par une salle de bain et des WC indépendants. Un garage attenant et un porche d’entrée complètent cet ensemble confortable et fonctionnel.






